- г. Санкт-Петербург, Ленинский проспект д.153, Офис 513
- +7-962-684-84-74, 8-(812)-984-84-74
- sk.euroservice@mail.ru
- Переговорная ул. Киришская 2А
Дом 296 м² Ривьера - 5

Описание планировки
Планировка дома представляет собой современный двухэтажный проект с максимальным акцентом на комфорт, свет и функциональность. Просторная кухня-гостиная объединяет семейное пространство, а кабинет и техническое помещение обеспечивают удобство для работы и хранения. На втором этаже расположены мастер-спальня с гардеробом, две детские комнаты и два санузла. Из мастер-спальни есть выход на балкон, а на первом этаже - на большую террасу, к которой примыкает отдельный блок для отдыха с сауной и помещением для хранения.
Первый этаж
- Крыльцо - 7,80 м²
- Тамбур - 6,25 м²
- Тех. помещение/Гардероб - 19,90 м²
- Кабинет - 12,34 м²
- Холл - 16,77 м²
- С/у - 5,78 м²
- Кухня - 13,39 м²
- Гостиная - 22,20 м².
- Блок отдыха:
- Тамбур - 3,16 м²
- С/у - 2,99 м²
- Сауна - 4,74 м²
- Помывочная - 4,98 м²
- Комната отдыха - 16,86 м²
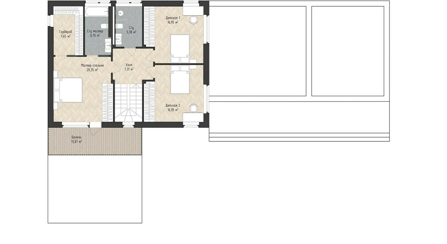
Второй этаж
- Холл - 7,31 м²
- Мастер-спальня - 20,35 м²
- Гардероб - 7,65 м²
- С/у мастер - 6,15 м²
- С/у - 5,78 м²
- Детская 1 - 16,95 м²
- Детская 2 - 16,95 м²
- Балкон - 13,01 м²
Особенности планировки
- Функциональное зонирование: Жилые, рабочие и хозяйственные помещения четко разделены для максимального удобства и приватности.
- Просторная кухня-гостиная: Сердце дома для общения и отдыха всей семьи.
- Кабинет: Идеально для работы или учебы.
- Три спальни: Подходят для семьи с детьми или приема гостей.
- Три санузла: Максимальный комфорт для всех членов семьи.
- Большая терраса и балкон: Пространства для отдыха на свежем воздухе.
- Блок отдыха с сауной: Отдельная зона для релаксации и оздоровления.
- Современный стиль: Много света, воздуха и пространства.
Краткое резюме
Этот проект дома идеально подходит для семьи из 3–5 человек, ценящих комфорт, пространство и современный стиль жизни. В доме есть все необходимое: три отдельные спальни, кабинет, просторная кухня-гостиная, три санузла, мастер-спальня с гардеробом и индивидуальным санузлом, большая терраса, балкон, а также отдельный блок отдыха с сауной. Дом выполнен в современном стиле с акцентом на функциональность, уют и свет.

Планировка дома
Стоимость уточняйте по телефону или при личном визите.
Этот проект можно реализовать из разных материалов:
Выбор зависит от ваших пожеланий, бюджета и сроков строительства.
Контакты
- +7-962-684-84-74, 8-(812)-984-84-74
- г. Санкт-Петербург, Ленинский проспект д.153, Офис 513
- Перейти в MAX
- sk.euroservice@mail.ru
- Переговорная ул. Киришская 2А
Москва
- г. Москва, переговорная, Большой Каретный переулок Дом 20 строение 2, Офис 5
- Перейти в MAX
- sk.euroservice@mail.ru
Сочи
- г. Сочи, переговорная, ул. Виноградная Дом 3, Офис 2
- +7-962-691-36-10
- Перейти в MAX
- sk.euroservice@mail.ru
Дополнительные услуги
Кровля
Технический надзор
Авторский надзор
Судебрая экспертиза зданий



















