- г. Санкт-Петербург, Ленинский проспект д.153, Офис 513
- +7-962-684-84-74, 8-(812)-984-84-74
- sk.euroservice@mail.ru
- Переговорная ул. Киришская 2А
Дом 146 м² Серенити - 3 /12,1 × 8,8 м/

Первый этаж включает:
Кухня-гостиная (32,88 м²) — просторная и светлая зона для семейных встреч с выходом на террасу (15,0 м²).
Спальня (10,21 м²) — уютная комната для отдыха.
Санузел (4,74 м²) - оборудован всем необходимым.
Техническое помещение (4,16 м²) — для хранения и инженерных систем.
Прихожая (8,27 м²) — удобная входная зона.
Крыльцо (3,0 м²) — защищает вход в дом.
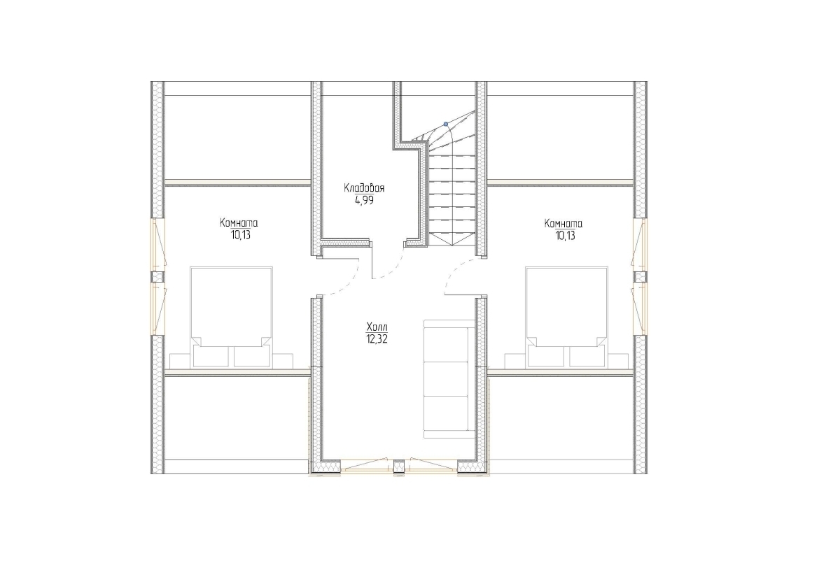
Второй этаж включает:
Две комнаты (по 10,13 м²) — подходят для детских, кабинетов или гостевых спален.
Холл (12,32 м²) — просторное центральное пространство, которое можно использовать как зону отдыха или кабинет.
Кладовая (4,99 м²) — для хранения вещей.
Планировка продумана для комфортного проживания семьи из 3–5 человек и сочетает в себе просторные жилые зоны, отдельные спальни и удобные вспомогательные помещения. Большая терраса и открытая планировка гостиной создают атмосферу уюта и свободы.

Заказать
Планировка дома
Характеристики
1.1 Сваи
· ✓Пробное бурение - Осмотр участка, исследование грунта, проведение пробного бурения;
· ✓Сваи железобетонные С30.15 КЖБИ;
· ✓Марка бетона по морозостойкости: F200;
· ✓Марка бетона по водонепроницаемости: W10;
· ✓Класс бетона: В 45;
· ✓Марка бетона: М 550;
· ✓Отпускная прочность: 100%;
· ✓С установкой ЖБ свай 3000 мм (разметка, привязка к местности);
· ✓Оголовок 250х250мм с монтажом, анкер 6мм;
· ✓Транспортные - доставка свай, доставка техники, вывоз техники. В пределах 50км от КАД. (Далее 50км, рассчитываем индивидуально).
Стены
2.1 Основание
· ✓Обвязочный брус - сечением 195х145мм;
· ✓Установка на гидроизоляцию Линокром;
· ✓Лаги пола - доска сухая строганная сечением 45x195мм;
· ✓Обработка элементов основания невымываемым антисептиком.
2.2 Несущий каркас
· ✓Внешние стены -каркас из сухой строганной доски сечением 45х145мм;
· ✓Внутренние несущие перегородки - из сухой строганной доски сечением 45х145мм;
· ✓Внутренние мехкомнатные перегородки - из сухой строганной доски сечением 45х95мм;
· ✓Конструктивные столбы - клееный брус 140х140мм. и 200х140мм;
· ✓Конструкционные столбы и столбы террасы - из клееного бруса сечением 140х140мм;
· ✓Межэтажное перекрытие - сухая строганная доска сечением 45х195мм.
2.3 Внешняя отделка
· ✓Ветрозащитная плита - Белтермо 20мм. Шип-паз;
· ✓Вентиляционный Брусок - 20х40мм;
· ✓Фасадная доска - имитация бруса камерной сушки. Вертикальная установка. Окрашенная на 3 слоя (1 слой грунтовки + 2 слоя краски).
Крыша
3.1 Кровля
· ✓Стропильная система - из сухой строганной доски сечением 45х195мм;
· ✓Ветрозащитная мембрана - Fakro (или аналог);
· ✓Контробрешетка - брусок + обрешетка из доски толщиной 25мм;
· ✓Кровельное покрытие - металлочерепица М35 Супер Монтеррей;
· ✓Лобовая доска - Скандинавский вариант лесенкой. Из сухой строганной доской сечением 20х100мм. Окрашена в 3 слоя (1 слой грунтовка+ 2 слоя краски);
· ✓Подшива свесов - Из сухой строганной доской сечением 20х100мм. Окрашена в 3 слоя (1 слой грунтовка+ 2 слоя краски).
3.2 Дополнительные кровельные аксессуары
· ✓Металлическая водосточная система (желоба, воронки, трубы);
· ✓Снегозадержание - металлическая трубчатая система снегозадержания;
· ✓Вентиляционные колпаки Vilpe. Для канализационного стояка и вытяжки в сан. узлах.
Окна и двери
4.1 Окна, двери террасные, входные временные
· ✓Окна - ПВХ. Профиль Rehau Blitz белого цвета. Двухкамерные стеклопакеты;
· ✓Наружные, наличники, откосы (окрашенные). Водоотливы белого цвета;
· ✓Дверь металлическая (утепленная).
Закрытый контур
5.1 Утепление
· ✓Ветрозащита черновых полов - Белтермо 25мм;
· ✓Пароизоляция - Пленка 200мкм Finka Premium Plus с проклеиванием стыков скотчем Finka Flexy tape;
· ✓Утепление - полов, стен, перегородок, перекрытий, крыши - эковата, минеральные ваты типа Роквул, пенопласт, пенополистерол напыляемый на выбор.
5.2 Полы
· ✓Сухие помещения - фанера 18мм. Обрешетка 28мм (установка доска через доску);
· ✓Влажные помещения - Плита ЦСП 24мм (укладка в 2 слоя 12+12мм). Обрешетка 28мм (установка доска через доску);
· ✓Утепление - полов, стен, перегородок, крыши - Эковата Грин Палп.
5.3 Аксессуары
· ✓Вентиляция - приточные клапаны в стенах;
· ✓Закладные из фанеры под установку кухни, тв, мебели и так далее;
· ✓Комлпект закладных под ввод коммуникаций (канализация, водоснабжение, электричество).
Сопровождение строительства
6.1 Техническая документация, технадзор и прочее
· ✓Архитектурный проект;
· ✓Проект КДД (Конструкции деревянные детализированные);
· ✓Технический надзор;
· ✓Гарантия на строительство;
· ✓Доставка (в пределах 50км от КАД. Далее рассчитываем индивидуально): крытой тентованной фурой. Выгрузка манипулятором;
· ✓Организация быта: Бытовка - доставка, аренда, вывоз. Биотуалет - доставка, аренда, обслуживание, вывоз.
Стоимость уточняйте по телефону или при личном визите.
Этот проект можно реализовать из разных материалов:
Выбор зависит от ваших пожеланий, бюджета и сроков строительства.
Контакты
- +7-962-684-84-74, 8-(812)-984-84-74
- г. Санкт-Петербург, Ленинский проспект д.153, Офис 513
- Перейти в MAX
- sk.euroservice@mail.ru
- Переговорная ул. Киришская 2А
Москва
- г. Москва, переговорная, Большой Каретный переулок Дом 20 строение 2, Офис 5
- Перейти в MAX
- sk.euroservice@mail.ru
Сочи
- г. Сочи, переговорная, ул. Виноградная Дом 3, Офис 2
- +7-962-691-36-10
- Перейти в MAX
- sk.euroservice@mail.ru
Дополнительные услуги
Кровля
Технический надзор
Авторский надзор
Судебрая экспертиза зданий








